0
Закладки
0
Сравнение
Ваша корзина пуста!
Корзина
Профиль шляпный

            Шляпный профиль : прочное решение для монтажа и строительства

                 Шляпный профиль (иногда называют «кронштейн-рейка», «монтажная направляющая») — это металлический элемент с поперечным сечением, визуально напоминающим цилиндрическую шляпу: выступающая центральная часть и два боковых фланца, загнутых вниз. Такая форма обеспечивает высокую устойчивость к нагрузкам при малой массе изделия.
            Профиль применяется как несущий или выравнивающий элемент для монтажа:

                          • Вентилируемых фасадов;
                          • Облицовочных систем;
                          • Сэндвич-панелей;
                          • Каркасных конструкций;
                          • Звукоизоляционных перегородок;
                          • Подвесных потолков;
                          • Обшивки технических помещений.



                           Технология производства

                              Шляпный профиль изготавливается методом холодной прокатки из рулонной оцинкованной стали, что позволяет точно формировать профильную геометрию без потери прочности металла. Производственный процесс включает:

                                  • Распуск рулонной стали;
                                  • Профилирование на вальцах;
                                  • Резка по размеру (в т.ч. 3000 мм);
                                  • Поставка в связках или штучно.






                                      Материал — оцинкованная сталь по ГОСТ 14918-80 или EN 10346 с цинковым покрытием не менее 80–140 г/м², обеспечивающим защиту от коррозии.
                                  Дополнительно профиль может иметь:

                                        • Порошковую окраску;
                                        • Полимерное покрытие (полиэстер, Пурал, ПВДФ);
                                        • Уплотнительные накладки (в местах стыков).



                                        Основные технические характеристики

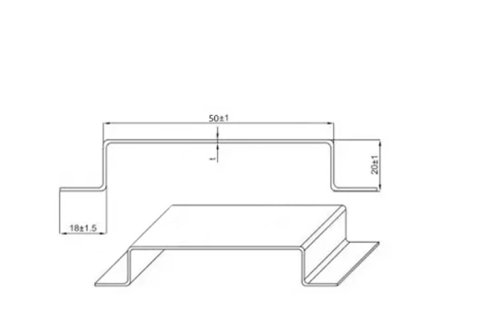
                                        Размеры направляющих: 50×20×3000 мм
                                        Материал: оцинкованная сталь
                                        Форма профиля: шляпный
                                        Ценовая категория: эконом
                                        Группа горючести: негорючий материал
                                        Коррозийная стойкость: удовлетворительная
                                        Устойчивость к механическим повреждениям: удовлетворительная
                                        Назначение: элемент несущего каркаса (крепёжный профиль)






                                         Преимущества шляпного профиля

                                         Высокая устойчивость к изгибающим нагрузкам
                                         Лёгкий вес — упрощает транспортировку и монтаж
                                         Универсальное применение в каркасных и фасадных системах
                                         Простота установки без специнструмента
                                         Доступная стоимость (эконом-класс)
                                         Не требует сложного обслуживания
                                         Возможность многократного использования
                                         Устойчив к влаге и перепадам температур




                                        Области применения

                                        Шляпный профиль применяется в самых разных сферах:

                                                      1. Фасадные системы (вентилируемые и декоративные) — как несущий элемент для облицовочных панелей;
                                                      2. Каркас зданий — временных и постоянных построек, бытовок, ангаров, гаражей;
                                                      3. Монтаж гипсокартона, OSB, ГВЛ — при строительстве межкомнатных перегородок;
                                                      4. Промышленные вентиляционные шахты, кабельные каналы и экраны;
                                                      5. Фермы, теплицы, парники — как облегчённый несущий элемент;
                                                      6. Монтаж звуко- и теплоизоляционных плит;
                                                      7. Ограждения, заборы, рекламные конструкции.








                                                      Методы крепления и варианты монтажа

                                                           Шляпный профиль легко крепится с помощью саморезов с прессшайбой — это самый распространённый и удобный способ фиксации. Также часто применяются дюбель-гвозди, особенно при монтаже на бетонные или кирпичные поверхности. Для соединения металлических элементов между собой используют заклёпки, а в более сложных или нагруженных конструкциях применяются анкерные болты.
                                                      В монтажных системах также могут использоваться регулируемые кронштейны, подвесы и соединительные элементы. Шаг крепления обычно составляет от 40 до 60 сантиметров, в зависимости от предполагаемой нагрузки. Крепёж осуществляется через технологические отверстия, а при необходимости — с предварительным сверлением.
                                                      Крепление осуществляется через технологические отверстия или с предварительным сверлением. Шаг крепления — от 400 до 600 мм, в зависимости от условий нагрузки.


                                                      Особенности монтажа

                                                                  • Профиль монтируется в вертикальном или горизонтальном положении;
                                                                  • Используются дистанционные кронштейны при необходимости выравнивания плоскости;
                                                                  • Возможно формирование сложных каркасных схем;
                                                                  • Все срезы и отверстия обрабатываются антикоррозийным составом;
                                                                  • При наружной установке обязательно учесть компенсацию температурного расширения.
                                                                  • Совет: если профиль используется на фасаде — обязательно применять термошайбы или уплотнители, чтобы исключить мостики холода.





                                                                  Условия хранения и транспортировки

                                                                  1. Профили хранятся в горизонтальных стопках;
                                                                  2. Не допускается длительный контакт с влагой;
                                                                  3. Торцы желательно закрывать полиэтиленом или заглушками;
                                                                  4. При хранении на открытых площадках — использовать навесы и влагозащиту.


                                                                  Рекомендации по выбору

                                                                  1. Проверяйте толщину и качество цинкового покрытия;
                                                                  2. Для уличного монтажа лучше выбирать профили с полимерным покрытием;
                                                                  3. Для временных конструкций достаточно недорогих оцинкованных моделей;
                                                                  4. Обращайте внимание на технологические отверстия — они должны быть ровными, без заусенцев.


                                                                      Шляпный крепёжный профиль 50×20×3000 мм  — это универсальный, прочный и недорогой элемент, который находит применение в самых разных строительных задачах. Его высокая прочность, простота монтажа, антикоррозионная устойчивость и доступность делают его одним из самых популярных решений для создания обрешёток, каркасов и монтажных оснований. Благодаря экономичности и лёгкости работы с ним, профиль широко используется как профессионалами, так и частными застройщиками.


                                                                  Акция -18%
                                                                  /шт
                                                                  Профиль шляпный 50х20х3000 (ОЦ-01-БЦ-0.9)
                                                                  Профиль шляпный 50х20х3000 (ОЦ-01-БЦ-0.9)
                                                                  31558-01
                                                                  Толщина металла, мм:
                                                                  199.57р. 163.66р.
                                                                  Акция -18%
                                                                  /шт
                                                                  Профиль шляпный 60х20х3000 (ОЦ-01-БЦ-0.9)
                                                                  Профиль шляпный 60х20х3000 (ОЦ-01-БЦ-0.9)
                                                                  31562-01
                                                                  Толщина металла, мм:
                                                                  217.80р. 178.61р.
                                                                  /шт
                                                                  Профиль шляпный 50х20х3000 порошковая окраска (ОЦ-01-БЦ-0.9)
                                                                  Профиль шляпный 50х20х3000 порошковая окраска (ОЦ-01-БЦ-0.9)
                                                                  31560-01
                                                                  Толщина металла, мм:
                                                                  226.28р.
                                                                  /шт
                                                                  Профиль шляпный 60х20х3000 (ОЦ-01-БЦ-1.2)
                                                                  Профиль шляпный 60х20х3000 (ОЦ-01-БЦ-1.2)
                                                                  31563-01
                                                                  Толщина металла, мм:
                                                                  242.44р.
                                                                  /шт
                                                                  Профиль шляпный 60х20х3000 порошковая окраска (ОЦ-01-БЦ-0.9)
                                                                  Профиль шляпный 60х20х3000 порошковая окраска (ОЦ-01-БЦ-0.9)
                                                                  31564-01
                                                                  Толщина металла, мм:
                                                                  247.69р.
                                                                  Акция -18%
                                                                  /шт
                                                                  Профиль шляпный 50х20х3000 (ОЦ-01-БЦ-1.2)
                                                                  Профиль шляпный 50х20х3000 (ОЦ-01-БЦ-1.2)
                                                                  31559-01
                                                                  Толщина металла, мм:
                                                                  264.62р. 217.00р.
                                                                  /шт
                                                                  Профиль шляпный 50х20х3000 порошковая окраска (ОЦ-01-БЦ-1.2)
                                                                  Профиль шляпный 50х20х3000 порошковая окраска (ОЦ-01-БЦ-1.2)
                                                                  31561-01
                                                                  Толщина металла, мм:
                                                                  279.62р.
                                                                  Акция -18%
                                                                  /шт
                                                                  Профиль шляпный 90х20х3000 (ОЦ-01-БЦ-1.2)
                                                                  Профиль шляпный 90х20х3000 (ОЦ-01-БЦ-1.2)
                                                                  31566-01
                                                                  Толщина металла, мм:
                                                                  366.13р. 300.24р.
                                                                  Акция -18%
                                                                  /шт
                                                                  Профиль шляпный 60х20х3000 порошковая окраска (ОЦ-01-БЦ-1.2)
                                                                  Профиль шляпный 60х20х3000 порошковая окраска (ОЦ-01-БЦ-1.2)
                                                                  31565-01
                                                                  Толщина металла, мм:
                                                                  374.01р. 306.71р.
                                                                  Акция -18%
                                                                  /шт
                                                                  Профиль шляпный 90х20х3000 порошковая окраска (ОЦ-01-БЦ-1.2)
                                                                  Профиль шляпный 90х20х3000 порошковая окраска (ОЦ-01-БЦ-1.2)
                                                                  31567-01
                                                                  Толщина металла, мм:
                                                                  466.16р. 382.27р.
                                                                  Показано с 1 по 10 из 10 (всего 1 страниц)